시추조사는 현장원위치 시험을 목적으로 토사와 퇴적층에 대한 시료 및
암반의 코어를 채취하여 지반의 분포 및 구성상태를 파악하며, 동시에
표준관입시험을 실시하여 지반의 특성을 파악한다.
또한 현장시험(현장밀도시험, 현장투수시험, 전기비저항 탐사 등)과
실내시험을 실시하고 분석하여 설계자료로 활용한다.
시추조사 모식도
현장투수시험
전기비저항탐사
표준관입시험
불교란시료 채취
현장밀도시험
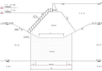
지하굴착공법으로는 자연터파기(OPEN CUT), 토류벽설치공법(H-PILE+토류판, C.I.P공법, S.C.W공법, DIAPHRAGM WALL공법 등)
역타공법(TOP-DOWN) 등이 있다. 지반조사 결과에 따른 공법의 적정성을 판단하고 각 공법에 따른 기초, 사면, 벽체, 지보재 등의
정밀한 안정성 검토에 의해 설계가 이루어져야 한다.
자연터파기 안정성 검토
구조물터파기 침투해석
H-PILE+토류판 검토
H-PILE 자립검토
H-PILE+버팀보 검토
H-PILE+ANCHOR
1. 철저한 사전조사와 정확한 현황측량을 실시하여 기존 기반시설과의 연계성 확보
2. 주변도로 접근성 및 집중호우 피해 방지를 위한 합리적인 부지조성 계획 수립
3. 시공성 및 안전성을 고려한 하수BOX 이설 계획 수립
4. 도심 환경계획을 수립하여 민원발생 최소화
1. 구조물의 하중, 지반특성, 환경성을 고려한 최적의 기초형식 및 시공법 선정
2. 침하영향, 지층별 지지력 및 하중 규모 등을 고려한 최적의 지지층 선정
3. 다양한 해석기법을 이용한 기초 안정성 검토
단층파쇄대 해석모델링
단층파쇄대 영향검토
3차원 기초안정성 검토
1. 지반개량체의 복합지반강도정수 선정이 매우 중요함
2. 침하영향, 지층별 지지력 및 하중 규모 등을 고려한 최적의 지지층 선정
3. 연약지반의 성토 및 구조물의 침하 발생에 따른 지반보강 그라우팅
4. 기존제방의 추가성토 등으로 인한 사면 및 지반의 안정성 검토 및 대책 마련
5. 현장답사-지형확인, 육안정밀 조사, 기존자료분석
6. 지표지질조사-붕괴이력 및 불연속면 상태 파악
7. 조사내용 정밀분석
8. 안정성검토 및 분석
9. 안정성확보 대책 마련
1. 민원 및 지역여건을 고려한 기타설계
2. 지역현황을 고려한 내진설계 수행
3. 기초 및 비탈면의 유사정적해석 안정성 검토
4. 구간별 암반 발파설계 및 발파 추정식에 의한 진동-소음 영향원 검토
하향식 탄성파 탐사
공내영상촬영
유사정적해석
발파 영향원 검토
1. 특허, 신기술/신공법 연구 개발
2. 산학연 공동 PROJECT 수행
3. 지반관련 R&D 과제 수행
4. 지반구조물, 지반보강, 내진보강 글로벌 기술 경쟁력 강화 연구 개발